Kontorsvåning
Mycket fräscht och inbjudande, 150kvm.
Totalrenoverat under 2006.
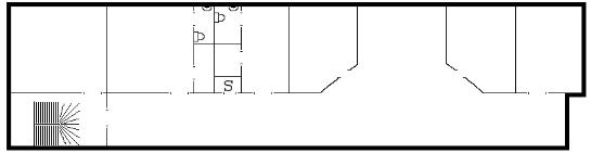
Våningen innehåller konferensrum, pentry, två WC, duschrum, kapprum och förråd samt fyra stora, ljusa kontorsrum.
Detta kontor är beläget på andra våningen och samtliga rum har utsikt mot en park.
Egen parkering för fyra bilar i direkt anslutning till ingången ingår dessutom.
Klicka för att se bilderna och planlösningen i större format.